エステートあすなろ特選、マンション「豊成107番館」の賃貸物件情報です。どのようなことでもお気軽にお問い合せください。

所在地
岡山市北区問屋町11-104
賃料
340,615円~393,915円
共益費
賃料に含む
駐車場
1台 9,900円
敷金
敷金4ヶ月.礼金1ヶ月
建物名
問屋町店舗
構造
RC(鉄筋コンクリート)造
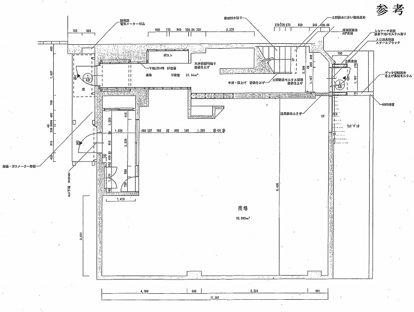
間取り
図面参照
間取り内訳
-
築年数
昭和43年6月
入居予定日
相談
タイプ
その他
部屋番号
1F.2F
専有面積
1F93.09㎡・2F139.29㎡
設備
駐車場
あり
貸出戸数
2戸
条件等/契約期間
5年間
特記事項
1F 340,615円(税込)・2F 393,915円(税込)
※一括相談可
※内装・設備については借主にて負担
※駐車場 計4台有
※1階のみ契約時、駐車場は組合駐車場、別途費用要
※定期借家 契約期間5年(再契約型)
間取り
問屋町店舗:間取り
写真3
問屋町店舗:写真3
写真4
問屋町店舗:写真4
写真5
問屋町店舗:写真5
地図
この物件についてお問い合せ ☎ お電話でお問い合せ

住宅ローンシミュレート

※住宅ローンのシミュレーションを自動で計算します。借入額、返済年数、金利(0.001~18%)、ボーナス返済総額を入力して「計算する」をクリックしてください。

借入額:万円 返済年数:年 金利% ボーナス返済総額万円
月額返済額:円 ボーナス時返済額(年2回) :